No.253 静かな街並みに建つ趣ある邸宅
No.253 亀嵩
| 物件番号 | 253 | 物件種別 | 売買物件 |
|---|---|---|---|
| 所在地 | 奥出雲町亀嵩 | ||
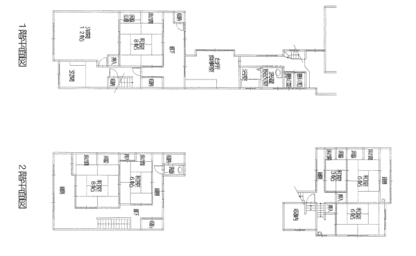
| 価格 | 300万円 | 間取り | 5LDK以上 |
| 交渉状況 | 建築年 | 1967年 | |
| 面積 | 土地面積259.99㎡ 建物面積236.89㎡ | ||
| 駐車場 | 1台 | 駐車場料金 | |
| 電気 | 引き込み済み | ガス | プロパンガス |
| テレビ | 未接続 | 水道 | 上水道 |
| 下水道 | 浄化槽 | トイレ | 水洗 |
| お風呂 | 電気 | インターネット | |
| 附属建物 | 物置 車庫 | その他施設 | 田、山あり |
| 見学について | 要日程調整 | ||
| 備考 | |||
| 物件番号 | 253 | 物件種別 | 売買物件 |
|---|---|---|---|
| 所在地 | 奥出雲町亀嵩 | ||
| 価格 | 300万円 | 間取り | 5LDK以上 |
| 交渉状況 | 建築年 | 1967年 | |
| 面積 | 土地面積259.99㎡ 建物面積236.89㎡ | ||
| 駐車場 | 1台 | 駐車場料金 | |
| 電気 | 引き込み済み | ガス | プロパンガス |
| テレビ | 未接続 | 水道 | 上水道 |
| 下水道 | 浄化槽 | トイレ | 水洗 |
| お風呂 | 電気 | インターネット | |
| 附属建物 | 物置 車庫 | その他施設 | 田、山あり |
| 見学について | 要日程調整 | ||
| 備考 | |||