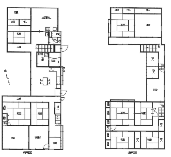
No.254 三成駅まで徒歩圏内の二階建戸建住宅
No.254 三成
| 物件番号 | 254 | 物件種別 | 売買物件 |
|---|---|---|---|
| 所在地 | 奥出雲町三成 | ||
| 価格 | 850万円 | 間取り | 5LDK以上 |
| 交渉状況 | 交渉中 | 建築年 | 1959年(1976年増築) |
| 面積 | 土地面積274.4㎡ 建物面積133.88㎡ | ||
| 駐車場 | 1台 | 駐車場料金 | |
| 電気 | 引き込み済み | ガス | |
| テレビ | CATV接続済み | 水道 | 上水道 |
| 下水道 | 接続済み | トイレ | 水洗 |
| お風呂 | 電気 | インターネット | |
| 附属建物 | 物置 車庫 | その他施設 | 畑(要相談) |
| 見学について | 要日程調整 | ||
| 備考 | オール電化 スーパー、コンビニまで徒歩圏内 | ||









