No.256 県道沿いのファミリー層向け二階建戸建住宅
No.256 大呂
| 物件番号 | 256 | 物件種別 | 売買物件 |
|---|---|---|---|
| 所在地 | 奥出雲町大呂 | ||
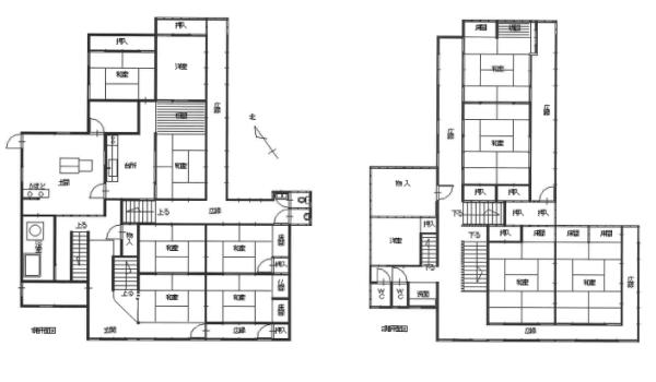
| 価格 | 200万円 | 間取り | 5LDK以上 |
| 交渉状況 | 交渉中 | 建築年 | 1929年(2005年増改築) |
| 面積 | 土地面積1133.22㎡ 建物面積269.42㎡ | ||
| 駐車場 | 3台以上 | 駐車場料金 | |
| 電気 | 引き込み済み | ガス | |
| テレビ | CATV接続済み | 水道 | 上水道 |
| 下水道 | 接続済み | トイレ | 水洗 |
| お風呂 | 灯油 | インターネット | |
| 附属建物 | 納屋 | その他施設 | 土蔵、畑 |
| 見学について | 要日程調整 | ||
| 備考 | IHキッチンコンロ | ||









