三成駅まで徒歩5分、コンパクトな間取りの戸建賃貸物件。
No.181 三成
| 物件番号 | 181 | 物件種別 | 賃貸物件 |
|---|---|---|---|
| 所在地 | 奥出雲町 三成 | ||
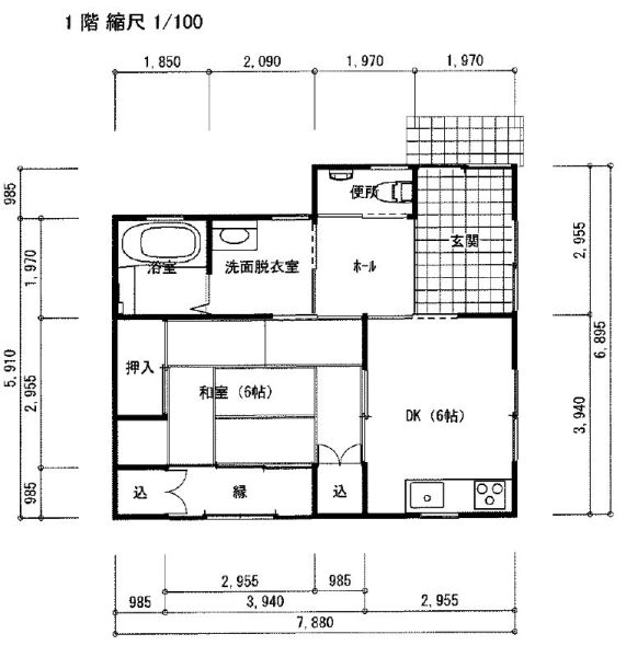
| 価格 | 4万7千円 (敷金3ヶ月、礼金なし) | 間取り | 1DK |
| 交渉状況 | 交渉中 | 建築年 | 2003年 |
| 面積 | 土地159.35㎡ 建物50.45㎡ | ||
| 駐車場 | 有り | 駐車場料金 | |
| 電気 | 引き込み済み | ガス | プロパンガス |
| テレビ | 水道 | 上水道 | |
| 下水道 | 接続済み | トイレ | 水洗(洋式) |
| お風呂 | ガス | インターネット | |
| 附属建物 | その他施設 | ||
| 見学について | 要日程調整 | ||
| 備考 | |||









